Modelos
Descubre nuestros modelos de casas EcoFlexibles en Canarias.
Modelo Tulipan 30 m²
1.- Dimensiones DESPLEGADO: largo 5900 x ancho 4980 x alto 2480 mm. Dimensiones INTERIORES: largo 5460 x ancho 6320 x alto 2235.
2.- Incluye 1 puerta de seguridad de acero y 5 ventanas corredizas de PVC.
3.- Marco blanco/negro + panel sándwich de pared blanco/madera/gris.
4.- Con electricidad.
Modelo Girasol 35 m²
1.- Dimensiones DESPLEGADO: largo 5900 x ancho 6480 x alto 2480 mm. Dimensiones INTERIORES: largo 5460 x ancho 6320 x alto 2235.
2.- Incluye 1 puerta de seguridad de acero y 6 ventanas corredizas de PVC.
3.- Marco blanco/negro + panel sándwich de pared blanco/madera/gris.
4.- Con electricidad.








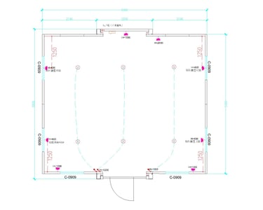
Modelo Geranio 35 m² con baño


























Colores
1.- Dimensiones DESPLEGADO: largo 5900 x ancho 6480 x alto 2480 mm. Dimensiones INTERIORES: largo 5460 x ancho 6320 x alto 2235.
2.- Incluye 1 puerta de seguridad de acero y 6 ventanas corredizas de PVC.
3.- Marco blanco/negro + panel sándwich de pared blanco/madera/gris.
4.- Con electricidad.
5.- Con baño (ducha con puerta corredera, ducha, inodoro, lavabo con mueble y espejo)





Modelo Margarita 10 m²
1.- Dimensiones DESPLEGADO: 5´80 m x 2,40m x 2,40 m
2.- Incluye 1 puerta de seguridad de acero y 2 ventanas corredizas de PVC.
3.- Marco blanco/negro + panel sándwich de pared blanco/madera/gris.
4.- Con electricidad.
